Beschreibung
Ausstattung
Lage
Sonstiges
Die zur Vermietung stehende 2-Zimmerwohnung liegt im Dachgeschoss (gedämmt) eines individuellen denkmalgeschützten 3-Parteienhauses aus den ca. 1920-1930er Jahren. Es handelt sich um eine sehr gepflegte, helle und hochwertige Wohnung ideal für Personen, die etwas Besonderes suchen.
Die Fenster sind überwiegend in Holzausführung, doppeltverglast und mit elektrischen Rollläden, ausgenommen im Schlafzimmer, ausgestattet. Alle Wände sind raufasertapeziert und weiß gestrichen. Es erfolgt eine unrenovierte Übergabe. Die Oberböden sind mit einem einheitlichen, hellen Laminat versehen und im Bad weiß gefliest. Die Räumlichkeiten sind mit Deckenspots versehen, welche der Wohnung einen wohnlichen und moderne Charakter verleihen.
Die vorhandene helle Einbauküche inkl. aller Elektrogeräte sowie diverse praktische Einbauschränke werden mitvermietet und runden damit das Angebot ab.
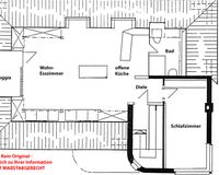
- Diele
- Schlafzimmer
- offene Küche
- Bad mit Dusche, WC und Handwaschbecken
- Wohn-Esszimmer mit Ausgang auf die Loggia
Von der Wohnung aus führt eine Holzeinschubtreppe auf den Spitzboden, welcher als Speicher/Abstellbereich genutzt werden kann.
Ein geräumiger Kellerraum zur alleinigen Nutzung sowie ein gemeinschaftlicher Waschraum stehen zur Verfügung.
Auf dem Grundstück steht ein PKW-Außenstellplatz zur Verfügung.
Die Wohnung befindet sich 41334 Nettetal-Lobberich, in einer verkehrsberuhigten Seitenstraße in zentraler Lage. Alle erforderlichen Ver- bzw. Entsorgungszu- und-ableitungen sind vorhanden. Das Zentrum von Lobberich mit den Läden des täglichen Bedarfs wie z.B. Supermärkte, Ärzte, Apotheke, Schreibwarenladen, Banken etc. erreichen Sie fußläufig. Aber auch eine Vielzahl weiterer Einkaufsmöglichkeiten sind in Lobberich gegeben. Nettetal überzeugt mit seinem großen Freizeitangebot für Jung und Alt. Der Naturpark Schwalm-Nette, direkt vor Ihrer Haustüre beginnend, und die Krickenbecker Seenplatte laden zum Wandern und Rad fahren ein. Sie wohnen außerdem mit besten Verkehrsanbindungen an die A61 Richtung Mönchengladbach / Koblenz bzw. Düsseldorf bzw. A40 Rich-tung Venlo / Ruhrgebiet. Des Weiteren befinden sich in Nettetal-Kaldenkirchen, Nettetal-Breyell und Viersen-Boisheim die nächsten Bahnhöfe mit internationalen Zugverbindungen.
Die Annahme, Vertretung und/oder Weitergabe dieser Vermietungsaufgabe begründen den Abschluss eines Maklervertrages. Irrtum, Auslassung sowie Zwischenvermietung bleiben vorbehalten. Alle hier im Angebot genannten Angaben, Daten und Informationen beruhen auf Angaben des Eigentümers bzw. sind aus uns vorliegenden Objektinformationen entnommen. Für die Richtigkeit dieser Aussagen übernehmen wir keine Haftung. Der vorhandene Energieausweis wurde von uns nicht ausgestellt, nicht geprüft und unkontrolliert übernommen. Für die Angaben übernehmen wir keine Gewährleistung und Haftung. Wir weisen ausdrücklich darauf hin, dass wir keine Rechts- und Steuerberatung vornehmen dürfen und verweisen auf entsprechendes Fachpersonal der rechts- und steuerberatenden Berufe.
Standort
-
41334 Nettetal - Lobberich
Preise
-
Miete zzgl. NK
765 €
-
Nebenkosten
170 €
-
Kaution
1.530 €
Die Immobilie
Wohnung zur Miete
-
Objekt-Nr
3114
-
Kategorie
Standard
-
Etage
2
-
verfügbar ab
01.12.2025
Stellflächen
-
Anzahl Stellplätze
1
-
Stellplätze
1
Räume und Flure
-
Anzahl Badezimmer
1
-
Anzahl Wohneinheiten
3
-
Anzahl Loggias
1
Ausstattung
- Rolladen
- Wasch/Trockenraum
- Kabel/Sat-TV
- Dachboden
- gepflegt
- Unterkellert: Ja
- Küche: Einbauküche, Offene Küche
- Boden: Fliesen, Laminat
- Heizungsart: Etagenheizung
Energiebedarfsausweis
0255075100125150175200225250
186 kWh/(m²*a)
-
Endenergiebedarf
186 kWh/(m²*a)
-
Befeuerungsart
Gas
-
Wesentlicher Energieträger
Gas
-
Energieeffizienzklasse
F
-
Gültig bis
25.03.2029
-
Energieausweis
2014
-
Energieausweis Ausstellungsdatum
2019-03-26