Beschreibung
Ausstattung
Lage
Bei der angebotenen Immobilie handelt es sich um eine massiv errichtete Doppelhaushälfte in eingeschossiger Bauweise mit ausgebautem Dachgeschoss sowie Spitzboden. Das Gebäude ist voll unterkellert. Die Kellerwände bestehen aus wasserundurchlässigem Beton, das aufgehende Mauerwerk aus Kalksandstein mit einer Klinkerfassade. Die Kellerdecke sowie die Decke über dem Erdgeschoss sind als Stahlbetonkonstruktionen ausgeführt. Im Dachgeschoss ist eine Rigipsdecke mit ca. 12 cm Wärmedämmung vorhanden. Der Dachstuhl besteht aus einer Holzkonstruktion. Die Fenster sind aus Holz mit Isolierverglasung und verfügen teilweises über elektrische Rollläden; die Hauseingangstür ist in Kunststoffausführung mit Glaseinsatz. Fenster und Türe stammen aus dem Baujahr. Der Keller ist überwiegend gefliest. In der Waschküche befinden sich zusätzlich eine Dusche sowie ein Waschbecken. Bodenabfluss und Pumpensumpf sind vorhanden. Der Hobbyraum im Kellergeschoss ist beheizt, mit Teppichboden ausgestattet und verfügt über ein Fenster mit Rollläden. Dieser Raum ist wohnraumähnlich und kann hervorragend genutzt werden. Über eine massive Kelleraußentreppe aus Beton besteht ein direkter Zugang vom Keller in den Garten. Eine offene Wendeltreppe in Stahlkonstruktion verbindet alle Ebenen vom Keller bis in den Spitzboden. Ein Lifter ist vorhanden. Das Erdgeschoss ist gefliest. Im Dachgeschoss sowie im Spitzboden sind teilweise Holzdecken vorhanden. Im Dachgeschoss wurde Laminat verlegt, das Badezimmer ist gefliest. Der Spitzboden ist mit Teppichboden ausgestattet. Vom Wohnzimmer aus besteht Zugang auf die Terrasse und in den sich anschließenden kleinen Garten. Die Terrasse verfügt über eine große Markise. Zusätzlich ist der Garten seitlich vom Haus aus direkt von der Straße zugänglich.
Kellergeschoss:
Im Keller befindet sich neben dem Flur ein Vorrats- bzw. Anschlussraum, ein Abstell-/Werk- bzw. Heizungsraum sowie ein Hobbyraum mit wohnraumähnlichem Charakter. Von der Waschküche, mit Dusche und Handwaschbecken ausgestattet, führt eine Kelleraußentreppe in den Garten.
Die offene Wendeltreppe führt vom Flur aus ins
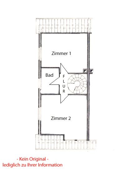
Erdgeschoss:
Diele
Gäste-WC
Küche verbleibt im Haus
Wohn-/Esszimmer mit Zugang auf die Terrasse/Garten
Von der Diele aus führt die Wendeltreppe weiter ins
Dachgeschoss:
Flur
Zimmer 1, ein vom Schreiner angepasster massiver Einbau-Kleiderschrank ist vorhanden.
Bad, Wanne, WC, Handwaschbecken, Fenster!
Zimmer 2
Die Wendeltreppe führt weiter in den
Spitzboden:
Zimmer 3
Abstellraum
PKW-Stellplatz: Eine Garage oder ein PKW-Stellplatz ist auf dem Grundstück nicht vorhanden. Vor dem Haus bestehen allerdings öffentliche Parkmöglichkeiten. Darüber hinaus besteht ggf. die Möglichkeit gegenüber eine Garage anzumieten.
Das Haus befindet sich in einer familienfreundlichen (Spielstraße und Sackgasse!), ruhigen und zugleich sehr zentralen Wohnlage von Grefrath. Alle wichtigen Ver- und Entsorgungsanschlüsse wie Strom, Gas, Wasser und Kanal sind selbstverständlich vorhanden. Einkaufsmöglichkeiten für den täglichen Bedarf - darunter Bäcker, Lebensmittelgeschäft, Drogerie, Apotheke, Ärzte, Banken und Versicherungen - erreichen Sie bequem zu Fuß. Mehrere Kindergärten eine Grundschule sowie eine weiterführende Schule liegen ebenfalls direkt im Ort. Grefrath überzeugt mit einem Hallen- und Freibad, einem großen Eissportzentrum sowie einem breit gefächerten Vereinsangebot und vielfältigen Möglichkeiten zur Erholung in der Natur, etwa beim Spazierengehen oder Radfahren. Dank der hervorragenden Verkehrsanbindung an die B509 gelangen Sie direkt in den Krefelder Raum, und auch der Bahnhof in Kempen bietet beste Verbindungen in die Region.
Es wurde soweit wie möglich geprüft, ob eine Baugenehmigung vorliegt und ob das ausgeführte Bauvorhaben mit der Baugenehmigung sowie der verbindlichen Bauleitplanung übereinstimmt, jedoch kann keine Gewähr für die Vollständigkeit dieser Prüfung übernommen werden. (Alle uns vorliegenden Unterlagen stellen wir Ihnen gerne zur Verfügung). Alle hier im Angebot genannten Angaben, Daten und Informationen beruhen auf Angaben des Eigentümers bzw. sind aus vorliegenden Objektinformationen entnommen. Für die Richtigkeit dieser Aussagen übernehmen wir keine Haftung. Irrtum, Auslassung sowie Zwischenverkauf bleiben vorbehalten. Der vorhandene Energieausweis wurde von uns nicht ausgestellt, nicht geprüft und unkontrolliert übernommen. Für die Angaben übernehmen wir keine Gewährleistung und Haftung. Wir weisen ausdrücklich darauf hin, dass wir keine Rechts- und Steuerberatung vornehmen dürfen und verweisen auf entsprechendes Fachpersonal der rechts- und steuerberatenden Berufe.
Preise
-
Kaufpreis
285.000 €
-
Käuferprovision inkl. USt.
3.213 %
Die Immobilie
Haus zum Kauf
-
Objekt-Nr
3141a
-
Kategorie
Standard
-
Anzahl Etagen
1
-
verfügbar ab
Nach Absprache
Räume und Flure
-
Anzahl Schlafzimmer
3
-
Anzahl Badezimmer
1
-
Anzahl Wohneinheiten
1
-
Anzahl separate WCs
2
-
Anzahl Terrassen
1
Ausstattung
- Provisionspflichtig
- Rolladen
- Wasch/Trockenraum
- Abstellraum
- Gäste-WC
- gepflegt
- Unterkellert: Ja
- Bad mit: Wanne, Fenster
- Boden: Fliesen, Teppich, Laminat
- Heizungsart: Fußbodenheizung
Allgemeiner Hinweis
Es wurde soweit wie möglich geprüft, ob eine Baugenehmigung vorliegt und ob das ausgeführte Bauvorhaben mit der Baugenehmigung sowie der verbindlichen Bauleitplanung übereinstimmt, jedoch kann keine Gewähr für die Vollständigkeit dieser Prüfung übernommen werden. (Alle uns vorliegenden Unterlagen stellen wir Ihnen gerne zur Verfügung). Alle hier im Angebot genannten Angaben, Daten und Informationen beruhen auf Angaben des Eigentümers bzw. sind aus vorliegenden Objektinformationen entnommen. Für die Richtigkeit dieser Aussagen übernehmen wir keine Haftung. Irrtum, Auslassung sowie Zwischenverkauf bleiben vorbehalten. Der vorhandene Energieausweis wurde von uns nicht ausgestellt, nicht geprüft und unkontrolliert übernommen. Für die Angaben übernehmen wir keine Gewährleistung und Haftung. Wir weisen ausdrücklich darauf hin, dass wir keine Rechts- und Steuerberatung vornehmen dürfen und verweisen auf entsprechendes Fachpersonal der rechts- und steuerberatenden Berufe.
Energiebedarfsausweis
0255075100125150175200225250
211,20 kWh/(m²*a)
-
Endenergiebedarf
211,20 kWh/(m²*a)
-
Befeuerungsart
Gas
-
Wesentlicher Energieträger
Gas
-
Energieeffizienzklasse
G
-
Gültig bis
29.01.2036
-
Energieausweis Ausstellungsdatum
2026-01-30